Firma
Inwestycje
Oferta
Referencje
Kontakt
PralnieSerwis
Projektowanie
Wykonawstwo
Serwis

Kotłownie - strona główna > Inwestycje > Projektowanie

Realizujemy opracowania projektowe kotłowni:
- parowych,
- wodnych,
- podgrzewających olej termiczny.

Specjalizujemy się w szczególności w projektowaniu kotłowni pracujących na potrzeby technologiczne w przemyśle, ale także u takich odbiorców jak hotele, szpitale czy domy opieki społecznej. Uwzględniamy najbardziej nietypowe potrzeby odbiorców - wykonujemy instalacje podgrzewające olej termiczny, instalacje opalane biomasą, instalacje wyposażone w stacje uzdatniania wody z wykorzystaniem odwróconej osmozy.



Projekty realizujemy w branżach:
- budowlanej (budowa lub modernizacja budynku kotłowni),
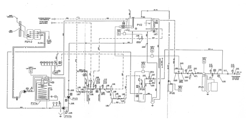
- technologicznej (przygotowanie wody kotłowej, zbiorniki i pompy oleju opałowego, przyłącza gazowe, węzły redukcyjne pary lub oleju termicznego, schładzanie odmulin i odsolin, odprowadzenie spalin),
- elektrycznej (zasilanie, sterowanie, oświetlenie, wizualizacja pracy urządzeń).



Opracowane przez nas projekty są zaopiniowane przez Rzeczoznawców w zakresie sanitarno-higienicznym, przeciwpożarowym, BHP i ergonomicznym. Projekty te są kompletne w zakresie umożliwiającym uzyskanie pozwolenia na budowę. W przypadku kotłowni, dla których z racji wielkości dla uzyskania decyzji o dopuszczeniu do eksploatacji jest wymagane wykonanie operatu ochrony powietrza, oferujemy również wykonanie takich operatów.

Wykonaliśmy dotychczas ponad 100 projektów kotłowni, które w ponad 90% zostały zrealizowane.
Wybrane pozycje z listy referencyjnej znajdują się tutaj.